パティーナ本所吾妻橋 401

18.1万円

管理 / 共益費 15,000円

東京都墨田区東駒形4丁目

都営浅草線「本所吾妻橋」駅徒歩6分

都営浅草線「押上」駅徒歩10分

半蔵門線「押上」駅徒歩14分

賃料
18.1万円
敷金(保証金)
0ヶ月(1ヶ月)
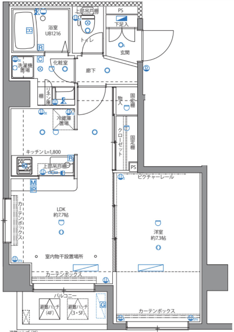
間取り
1LDK
向き
所在地
東京都墨田区東駒形4丁目
管理 / 共益費
15,000円
礼金
0ヶ月
専有面積
40.47㎡
築年月
2015年3月(築10年)
交通

都営浅草線本所吾妻橋」駅 徒歩6分

都営浅草線押上」駅 徒歩10分

半蔵門線押上」駅 徒歩14分

物件の特徴

  • バストイレ別

  • 室内洗濯機置場

  • TVモニタ付きインターホン

  • 独立洗面台

  • 浴室乾燥機

  • オートロック

  • エレベーター

セールスポイント

本所吾妻橋駅周辺への引っ越しをお考えなら「パティーナ本所吾妻橋」。セキュリティ面は、オートロック・TVインターホンなど充実しているので、防犯対策もばっちりです。目的に応じて選べる2駅利用可能な物件です。駐輪場付き物件です。交通アクセスの充実した住まいをお求めなら、本所吾妻橋周辺でお部屋探しをしてはいかがでしょう。きっとお客様のライフスタイルに合った暮らしが可能です。

ポイント

担当者のコメント

前原 暁

室内設備は洗面所独立・浴室乾燥機などが揃っているので、快適に過ごしやすいお部屋になります。収納はクロゼット・シューズボックスなどが備え付けられているので、衣類や日用品の収納に重宝します。セキュリティ面は、オートロック・TVインターホンなどを備え付けているので安心して暮らせます。共用部には宅配ボックス・ゴミ出し24時間OKなどが揃っており、とても充実しています。1LDKの物件なのでキッチンも快適でお料理も楽しい。全居室フローリングの、統一感ある内装です。本所吾妻橋駅周辺でのお住まい検索を成功させる為に、oshiage@takumi-es.jp宛てに、色々な条件を押上店にお申し付けください。

基本情報

保証金
1ヶ月
敷引 / 償却
- / -
敷金積み増し
ペット飼育:2ヶ月
間取り / 詳細
1LDK
LDK 6.9帖/洋室 6.9帖
向き
専有面積
40.47㎡
バルコニー
(テラス)面積
-
所在階 / 階建て
4階 / 6階建
建物構造
鉄筋コンクリート
築年月
2015年3月(築10年)
種別
賃貸マンション
保険会社 / 料金
有  火災保険  20,000円  / 2年
保証会社 / 料金
必加入 / オリコ
初回保証料:総賃料の50%
現況
居住中
入居可能時期
2026年02月下旬予定
その他条件
室内抗菌処理代:1万6,500円  契約事務手数料:1万1,000円  鍵交換代:3万8,500円  24時間サポート:980円(月額) 法人契約時、条件変更あり 短期解約違約金あり 留学生の場合は日本セーフティーのみ(総賃料100%)

設備条件

設備条件
  • ペット相談 / 陽当り良好 / 保証人不要 / 2人入居可 / 分譲タイプ / 法人可 / ルームシェア可 / カップル向け / 室内洗濯機置場 / フローリング / バルコニー / 都市ガス / 公営水道 / 公共下水 / 24時間換気システム / エレベーター / 電気有 / 照明器具付き / 駐輪場 / バイク置場あり / 敷地内ごみ置き場 / 免震構造 / 耐震構造 / ガスコンロ / コンロ2口以上 / システムキッチン / バス・トイレ別 / 浴室乾燥機 / 温水洗浄便座 / シャワー / 独立洗面台 / エアコン / シューズボックス / CS / BS / インターネット対応 / オートロック / TVモニタ付インターホン / 宅配ボックス / ディンプルキー / 防犯カメラ / 24時間ゴミ出し可 / エアコン全室 / 角部屋 / 初期費用カード決済可

その他

契約期間
2年
賃貸区分
一般
更新料
1.5ヶ月(新賃料)
更新事務手数料
-
総戸数
26戸
特優賃
-
取引態様
仲介
物件番号
99693730
管理コード
-
情報更新日
2026年01月04日
次回更新予定日
2026年01月18日
取扱会社
  • 匠エステート 押上店
  • 東京都墨田区押上1丁目11-2 田坂ビル1F
  • TEL:03-5619-7051
  • 東京都知事 (4) 第89127号
備考
「パティーナ本所吾妻橋」のここがイチオシ。収納はクロゼット・シューズボックスなど豊富なので、広々と空間を利用することも可能です。室内設備は洗面化粧台・浴室乾燥機など大変充実しております。こちらはエレベーター付き物件です。沿線上でお住まいをお探しなら、本所吾妻橋周辺はいかがでしょうか。当社へのご連絡は、03-5619-7051かoshiage@takumi-es.jpにお待ちしております。

パティーナ本所吾妻橋の他の部屋

  1. 402

    1LDK (40.83㎡)

    17.3万円(1.4万円/坪)

近隣の物件

  1. PREMIUM CUBE 両国DEUX

    墨田区亀沢4丁目

    1LDK (43.95㎡)

    18.5万円

  2. パークアクシス本所・親水公園

    墨田区本所4丁目

    1LDK (41.08㎡)

    19.1万円

  3. プラウドフラット本所吾妻橋

    墨田区東駒形4丁目

    1K (25.12㎡)

    12.7万円

  4. フュージョナル東墨田

    墨田区東墨田2丁目

    1LDK (45.05㎡)

    16.4万円

パティーナ本所吾妻橋

パティーナ本所吾妻橋

18.1万円

15,000円

1LDK(40.47㎡)

お気軽にお問い合わせください

LINEからお問い合わせ 無料お問い合わせ

匠エステート 押上店

03-5619-7051

9:00~18:00

(休:火曜日、年末年始(12/27~1/3))